Are you thinking of moving home?
Use our instant valuation tool and see how much your home is worth in seconds.





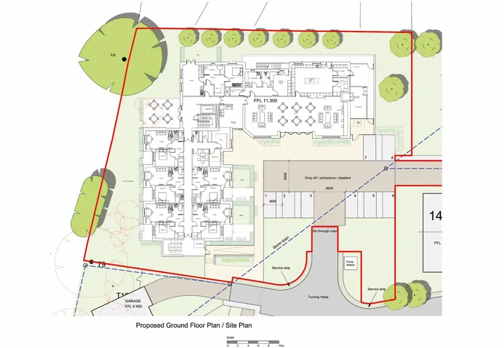
This land is a fantastic opportunity for developers PB ref P/01337/18 12 and 2 core units granted, mains services installed and foundations in.
Use our instant valuation tool and see how much your home is worth in seconds.
We provide fixed-fee residential conveyancing, designed especially for you, with no hidden costs and qualified solicitors available until 8pm.
Find out more