Paignton Close Romford RM3

£1,500 PCM

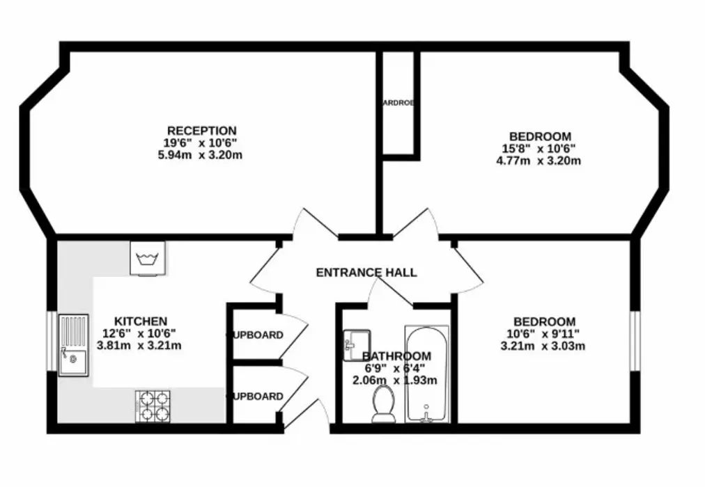
2 bedroom apartment to rent

Paignton Close Romford RM3
2 Bed2 Bedrooms
1 Bath1 Bathroom
1 Reception
Share

Key Features

  • Above-average EPC energy efficiency rating C (79/79)

Description

New to the market is this outstanding and spacious two double bed ground floor apartment. The property benefits from a separate kitchen with some integrated white goods, a spacious lounge and two double bedrooms. The property is available immediately and comes with parking To check broadband and mobile phone coverage please visit Ofcom here ofcom.org.uk/phones-telecoms-and-internet/advice-for-consumers/advice/ofcom-checker

Energy Performance

Energy Efficiency ratingToggle Icon

Paignton Close Romford RM3

Use the map to toggle between tabs and discover more about this area including local school information, broadband speed and sold prices.

Joanna Martin

Joanna Martin

Lettings Manager
Thinking of moving home?Use our instant valuation tool and see what your home is worth in seconds
Joanna Martin

Joanna Martin

Lettings Manager
Thinking of moving home?Use our instant valuation tool and see what your home is worth in secondsEnquire or Book a ViewingCall 01268 525421
Call us

Similar Properties near 3 Paignton Close

Woodcote Road Wallington SM6

£1,500 PCM2 bedroom apartment to rent
211

Elizabeth Court,189 Old Dover Road Canterbury CT1

£1,500 PCM2 bedroom penthouse to rent
221

Woodcote Road Wallington SM6

£1,525 PCM2 bedroom apartment to rent
211